Tunel KANALO 350

Kód produktu: IP-LLMO207

Tunelová trouba ve tvaru kruhové trubky je určena pro instalaci uvnitř přírodních nebo tvarovaných náspů. Délka skluzu 3,50 m, průměr 0,85 m. Vjezd a výjezd jsou kolmo k ose tunelu. Je kompletně vyrobena z matné nerezové oceli.

185 520 Kčcena s DPH
153 322 Kčcena bez DPH
Nezávazně poptat

Detailní popis produktu

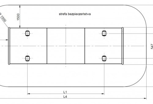
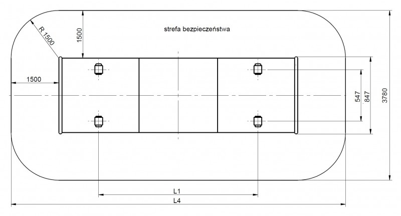
  • Rozměry výrobku (DxŠxV): 3,50 x 0,85 x 0,85 m
  • Bezpečnostní plocha (DxŠ): 6,50 x 3,78 m
  • Délka mezi patkami tunelu: L1 = 2,67 m
  • Délka tunelu: L2 = 3,50 m
  • Bezpečnost je na konci tunelu: 1,5 m
  • Hmotnost: 150 kg
  • Věková skupina: 2+
  • Certifikát potvrzující kompatibilitu s normou EN 1176
  • Rozdíly v rozměrech maximálně +/- 5 % jsou přijatelné

Příslušenství

  • 1 tunelová trubka

Materiál

  • matná nerezová ocel (0304), tloušťka ocelového plechu 2 mm
  • základové nohy z nerezové oceli
2